Wir sind für Sie da!
T +41 61 327 10 63
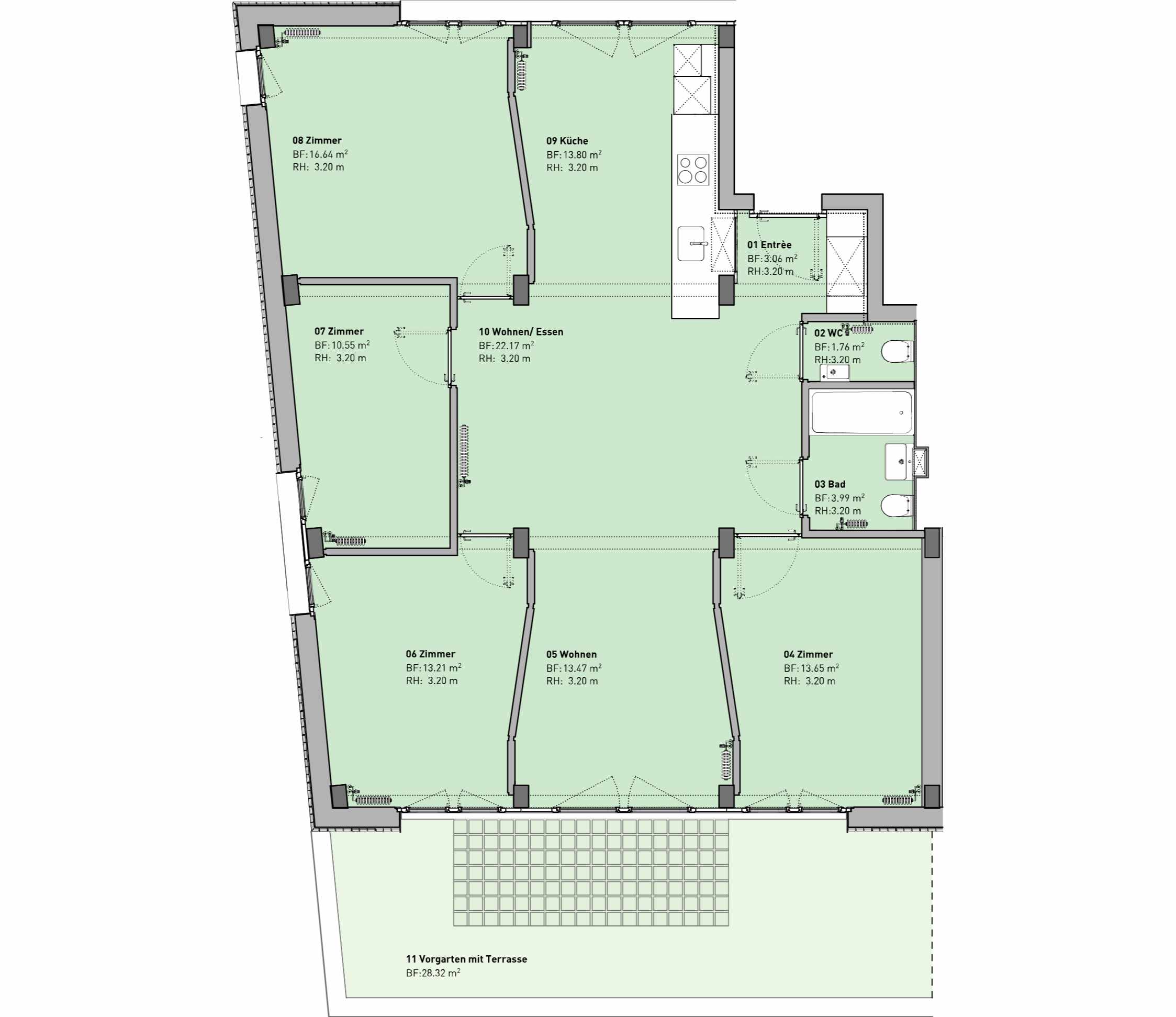
Bezahlbare Wohnungen für Familien und Wohngemeinschaften im Neubau Goldbachweg 20/22, Erlenmatt Ost
Objektnummer 1005
Liegenschaft
Goldbachweg 20/22
4058 Basel
Geschoss
Erdgeschoss
Zimmer
5.5
Fläche
ca. 112 m²
Mindestbelegung
4 Personen
Nettomietzins
CHF 2'500
Bruttomietzins
CHF 2'891
Mögliche Mietzinsbeiträge
Reineinkommen pro Jahr:
CHF 80'000 -95'000
oder Bezug von Sozialhilfegeldern / Ergänzungsleistung
oder in Ausbildung
Mietzinsbeitrag CHF 850
Reineinkommen pro Jahr:
CHF 95'000 - 105'000
Mietzinsbeitrag CHF 550
Reineinkommen pro Jahr:
CHF 105'000 - 115'000
Mietzinsbeitrag CHF 250
Bezugstermin
Mai 2026
Seite Drucken
